繁体中文  |  长者版  |  无障碍浏览  | 

蒙城县自然资源和规划局
当前位置: 网站首页 > 政府信息公开 > 蒙城县自然资源和规划局 > 通知公告
索引号: 11341622003178664H/202601-00094 组配分类: 通知公告
发布机构: 蒙城县自然资源和规划局 主题分类: 国土资源、能源
名称: 蒙城县三义输配站工程项目规划设计方案公示 文号:
发文日期: 2026-01-22 发布日期: 2026-01-22
索引号: 11341622003178664H/202601-00094
组配分类: 通知公告
发布机构: 蒙城县自然资源和规划局
主题分类: 国土资源、能源
名称: 蒙城县三义输配站工程项目规划设计方案公示
文号:
发文日期: 2026-01-22
发布日期: 2026-01-22
蒙城县三义输配站工程项目规划设计方案公示
发布时间:2026-01-22 14:58 信息来源:蒙城县自然资源和规划局 浏览次数: 字体:[ ]

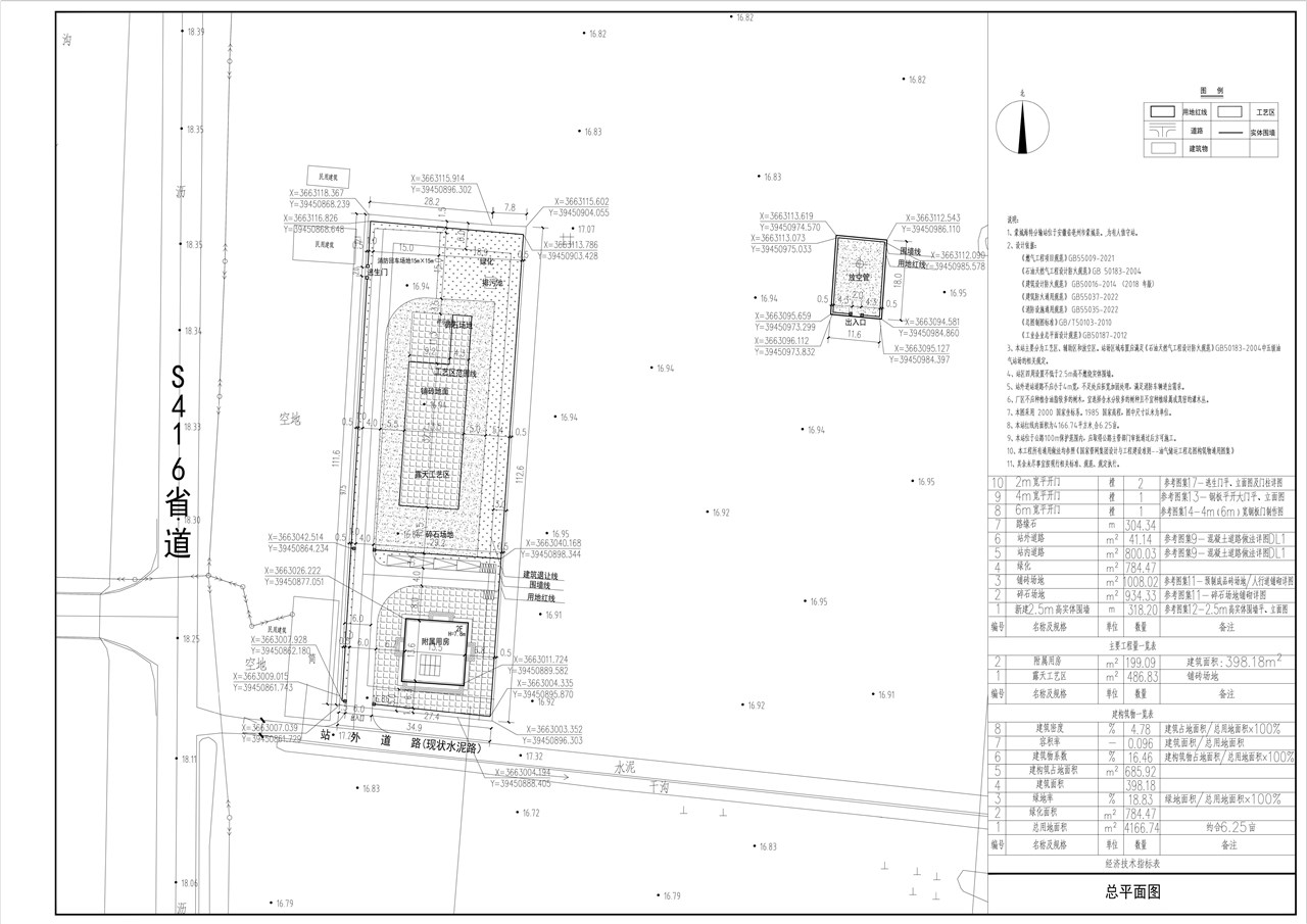
蒙城县三义输配站工程项目位于三义镇集东社区、蒙阚路东侧。蒙城县三义输配站工程项目经蒙城县自然资源和规划管理委员会2025年第7次会议研究同意通过,依据《中华人民共和国城乡规划法》及《国土空间规划公示公开规定(暂行)》等要求,现予以公示,有关单位或个人如有意见或建议,请在公示时间内与蒙城县自然资源和规划局联系。

公示时间:2026年1月222026年1月30日

公示内容:总平面图

平面图(效果篇)  

                                                                                                                                    

鸟瞰图(效果篇)

公示方式及地点: 现场和网上公示(可登录“亳州市政府信息公开网/县直属单位/蒙城自然资源和规划局”查询)

联系电话:0558-7620178              

 

蒙城县自然资源和规划局           

2026年1月22日