繁体中文  |  长者版  |  无障碍浏览  | 

蒙城县自然资源和规划局
当前位置: 网站首页 > 政府信息公开 > 蒙城县自然资源和规划局 > 行政规划
索引号: 11341622003178664H/202503-00103 组配分类: 行政规划
发布机构: 蒙城县自然资源和规划局 主题分类: 国土资源、能源
名称: 皖北仓储物流中心建设项目修建性详细规划设计方案公示 文号:
发文日期: 2025-03-19 发布日期: 2025-03-19
索引号: 11341622003178664H/202503-00103
组配分类: 行政规划
发布机构: 蒙城县自然资源和规划局
主题分类: 国土资源、能源
名称: 皖北仓储物流中心建设项目修建性详细规划设计方案公示
文号:
发文日期: 2025-03-19
发布日期: 2025-03-19
皖北仓储物流中心建设项目修建性详细规划设计方案公示
发布时间:2025-03-19 09:15 信息来源:蒙城县自然资源和规划局 浏览次数: 字体:[ ]

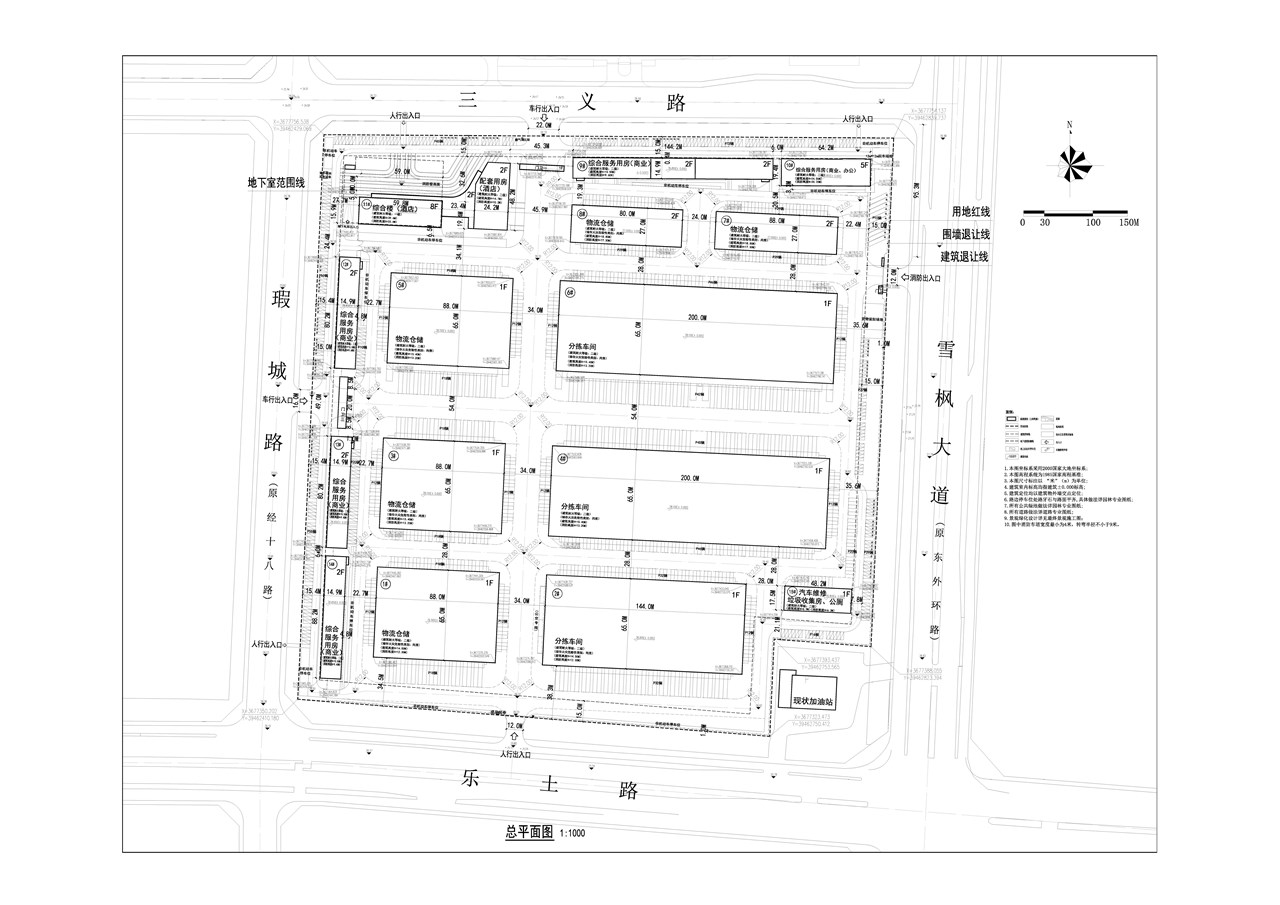
皖北仓储物流中心建设项目位于蒙城经济开发区东区,瑕城路以东、雪枫大道以西、三义路以南、乐土路以北。皖北仓储物流中心建设项目修建性详细规划设计方案经蒙城县自然资源和规划管理委员会2024年第6次会议研究同意通过,依据《中华人民共和国城乡规划法》及《国土空间规划公示公开规定(暂行)》等要求,现予以公示,有关单位或个人如有意见或建议,请在公示时间内与蒙城县自然资源和规划局联系。

公示时间: 2025年3月19——3月28日

公示内容:总平面图


平面图(效果篇)  

                                                                                                                                               

鸟瞰图(效果篇)

经济技术指标图

公示方式及地点: 现场和网上公示(可登录“亳州市政府信息公开网/县直属单位/蒙城县自然资源和规划局”查询)

 

联系电话:0558——7620178              

 

蒙城县自然资源和规划局           

2025年3月19日